Proma IV
| Erdgeschoss | |
![]() |
|
| Diele mit Garderobe: | 8,00 m² |
| Gast WC: | 4,86 m² |
| HA/HWR: | 10,15 m² |
| Gast/Arbeiten: | 10,36 m² |
| AK: | 2,92 m² |
| Küche: | 12,92 m² |
| Wohnen mit Galerie: | 31,48 m² |
| Nutzfläche: | 80.69 m² |
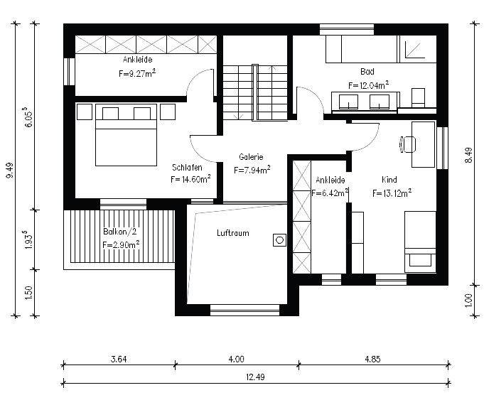
| Obergeschoss | |
![]() |
|
| Galerie: | 7,94 m² |
| Bad: | 12,04 m² |
| Schlafen: | 14,60 m² |
| Ankleide: | 9,27 m² |
| Kind: | 13,12 m² |
| Ankleide: | 6,42 m² |
| Balkon (häfltig): | 2,90 m² |
| Nutzfläche: | 66.29 m² |





