individuelle Planungen
Fläche: 157 m²
| Erdgeschoss | |
![]() |
|
| Flur/ Garderobe: | 14,12 m² |
| HA/HWR: | 8,85 m² |
| Masterbad: | 11,88 m² |
| Schlafen: | 17,26 m² |
| WC Gast: | 3,15 m² |
| Wohnen/ Kochen: | 34,26 m² |
| Nutzfläche: | 89.52 m² |
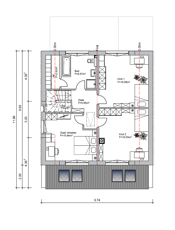
| Obergeschoss | |
![]() |
|
| AK: | 2,42 m² |
| Bad: | 8,57 m² |
| Diele: | 5,85 m² |
| Gast/ Arbeiten: | 15,84 m² |
| Kind 1: | 18,06 m² |
| Kind 2: | 18,03 m² |
| Nutzfläche: | 68.77 m² |

