Haus Braeburn
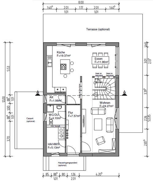
| Erdgeschoss | |
![]() |
|
| AK: | 1,90 m² |
| Essen: | 11,75 m² |
| Flur: | 7,37 m² |
| HA/HWR: | 4,99 m² |
| Küche: | 19,08 m² |
| WC/DU: | 3,98 m² |
| Wohnen: | 23,99 m² |
| Nutzfläche: | 73.06 m² |
| Obergeschoss | |
![]() |
|
| Bad: | 9,41 m² |
| Galerie: | 8,42 m² |
| Kind 1: | 11,21 m² |
| Kind 2: | 11,21 m² |
| Schlafen: | 17,00 m² |
| Nutzfläche: | 57.25 m² |









