Einfamilienhäuser Vincent
| Erdgeschoss | |
![]() |
|
| Diele mit Garderobe: | 7,49 m² |
| HA/HWR: | 4,68 m² |
| WC: | 3,45 m² |
| AK: | 3,11 m² |
| Wohnen/Essen/Küche: | 57,13 m² |
| Nutzfläche: | 75.86 m² |
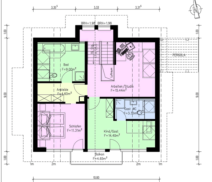
| Obergeschoss | |
![]() |
|
| Studio/ Arbeit: | 14,44 m² |
| Gast WC: | 3,35 m² |
| Schlafen: | 11,31 m² |
| Ankeide: | 4,60 m² |
| Bad: | 9,00 m² |
| Kind/ Gast: | 14,40 m² |
| Balkon (hälftig): | 2,33 m² |
| Nutzfläche: | 60.43 m² |




